Kelly Alvarez Doran
kellyalvarezdoran.bsky.social
Kelly Alvarez Doran
@kellyalvarezdoran.bsky.social
Co-Founder of halfclimatedesign.com
How can building and energy codes change to better suit existing buildings and help reduce carbon emissions?

Join us in Halifax on October 23rd for an engaging, collaborative Workroom hosted by the CAHP, Giaimo, and Ha/f.
October 13, 2025 at 1:05 PM
The benefits of asymmetry on full display along Blackfriars Road this morning. Predominantly north bound cycle traffic using the width of combined path. Central boulevard for bike and car parking and stops separate use from the sidewalk to keep them obstacle free….
September 18, 2025 at 7:10 AM
Life without cars. @thewaroncars.bsky.social
September 9, 2025 at 12:56 PM
Relieved to see that the 2nd district of Rhode Island is looking out for us.
March 8, 2025 at 9:17 PM
Marvelling at miles of mid-rise in Marseille. #MRIMBY
January 3, 2025 at 8:27 PM
Montpellier.
December 29, 2024 at 6:14 AM
Shallower than a unit in Toronto. 2/5ths the depth of the entire building.
December 17, 2024 at 9:37 PM
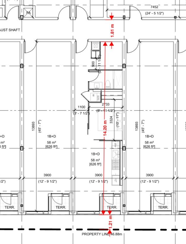
This unit illustrates a sweetspot - 7-9m deep units, 16-20m deep floor plates. The 'ideal depth' of a building ought to be 20m, and you'd want to encourage building forms that acheive this. And remove the antiquated 3m step-back on upper floors as that would make units comically shallow.
December 17, 2024 at 5:19 PM
Its straight forward. As the 'ideal depth' is 24-30m the @cityoftoronto.bsky.social is asking for units that are 11-14m in depth. These proportions make it near impossible to get bedrooms against the exterior surface. Housing wants to be wide and thin, not narrow and deep.
December 17, 2024 at 5:19 PM
Toronto loves the windowless bedroom. Building Code need not apply to the bedrooms of Midrises as they'd require shallower floor plates and built-forms that don't set-back nor step-back. Previously a 14m deep 1 Bed + 'Den', here is a 12m deep 2-bed.
December 17, 2024 at 5:19 PM
Whilst it feels great to see our work referenced in the Midrise Updates there is a one key suggestion that wasn't drawn upon that would have had dramatic impacts on how these buildings are conceived of: "Establish minimum and maximum unit depth guidelines for Mid-Rise buildings."
December 17, 2024 at 5:19 PM
And a good portion of them look something like this right now.
December 17, 2024 at 4:56 PM
London’s LTNs changed the life of my neighbourhood in ways that’s hard to describe to North Americans. This is my road every morning as a result.
December 17, 2024 at 7:25 AM
Two approaches to building mid rise housing.

@alexbozikovic.bsky.social @shawnmicallef.bsky.social
December 13, 2024 at 7:40 PM
If we want to encourage more multi-bed, family friendly units we need to have guidelines that are designed from the inside-out. The illustrations 'ideal lot depth' and rectangular form would result in a floor plan like this one. Queen East.
December 13, 2024 at 1:23 PM
While a step forward, Toronto's amendments to the Midrise Guidelines, the illustrations demonstrate some fundmental concerns with building's they're looking to guide. Some mark-ups:
December 13, 2024 at 1:23 PM
Meanwhile in London - removing lanes and parking to build resiliency and bike infrastructure. @jasonthorne.bsky.social
November 29, 2024 at 10:52 AM
Some weigh more than others.
November 26, 2024 at 11:21 PM