Jyrki Tarpio
banner
jyrkitarpio.bsky.social
Jyrki Tarpio
@jyrkitarpio.bsky.social
Arkkitehti & tekn. tri, asuntosuunnittelun tutkijatohtori Tampereen yliopistossa. Pohdintoja asumisen tiloista ja muodoista.

Postdoctoral researcher of housing design, Tampere University, School of Architecture. Shapes, types & logics of domestic space.
Kiertotalous?
November 17, 2025 at 1:51 PM
Päiväkotia sortteerataan.
November 17, 2025 at 1:37 PM
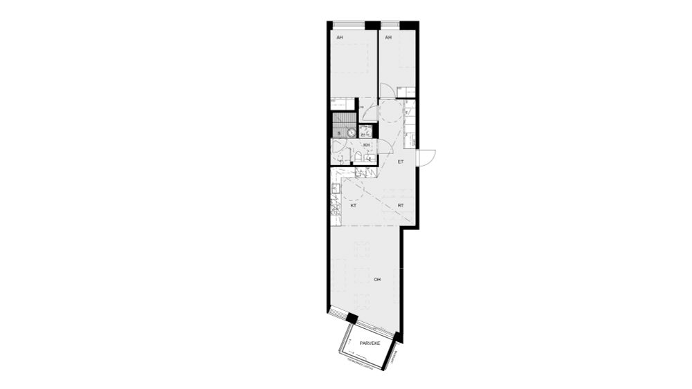
Kun mennään 17 kerrosta korkeampaan, hoikkeneeko suomalainen nykytornitalo ja väheneekö kerroksittainen asuntomäärä?

Ei näytä siltä. Tässä SRV:n Kalasatamaan rakentaman talon pohjapiirros sen 18. kerroksesta. Näyttäisi olevan 13 asuntoa per kerros ja rungon paksuus yli 25 metriä.
October 25, 2025 at 6:41 AM
Melko harvinainen tilaihme tämä päivän HS-asuntoliitteessä esitelty asunto. 58 neliöön saatu tehtyä 9 toisistaan eriytyvää paikkaa:
- sisäänkäyntitila ja
- siitä eriytetty eteisvälikkö
- kylpyhuone
- vaatehuone
- oleskelupiste
- ruokailutila
- ruoanvalmistuspiste
- iso makuuhuone
- pieni makuuhuone.
October 12, 2025 at 8:24 AM
Here's an image that shows how we usually classify apartment buildings (a lamella building in the left).
October 11, 2025 at 3:27 PM
This is what was a typical 'lamella' building in Finland in the 1970s.
October 11, 2025 at 2:52 PM
Kaksi uutta vuokra-asuntotornia pohjoismaisissa pääkaupungeissa. Suomessa kerroksiin on survottu kaksinkertainen määrä pinta-alaa tanskalaiseen verrokkiin verrattuna.

Kööpenhaminan Postbyen-tornin halkaisija on noin 21 m.
October 11, 2025 at 10:38 AM
Ennen yksiö – nyt tupakeittiö ja huone.
October 5, 2025 at 5:49 PM
Myytävistä asunnoista tehdään nykyään todella upeita visualisointikuvia – katso vaikka tätä kuvaa👇

Katso kuitenkin myös pohjapiirrosta👇 ja pohdi, kuvaako visualisointi samaa tilaa.

Vinkki: kiinnitä sisänäkymässä huomiota vasemmanpuoleisen ikkunan vasempaan reunaan ja vertaa sitä pohjapiirrokseen.
September 28, 2025 at 2:58 PM
The flat below is a more typical recent Finnish example of a flat described as 3H+KT. In this case, there are clearly only three habitable rooms (rooms with windows) and kitchen fittings are placed next to the back wall of the living room. Myself, I would state that this one is 2H+TUPAK.
September 27, 2025 at 2:27 PM
Let's compare these two flats. Spatially and functionally, the bigger one could be modified to contain a separate kitchen (green walls), even though the kitchen would be a thoroughfare room to one bedroom. In the smaller one, the same is theoretically possible, but the result functionally poor.
September 27, 2025 at 2:17 PM
Yksiöt nykytuotannolle tyypilliseen tapaan putkimaisia tai koukeloisia. Kph:t esteellisiä silloin, kun pyykkikone paikallaan. Kulmayksiö kuitenkin melko harvinainen tapaus ja melko tilava parveke parantaa miniyksiön käytettävyyttä.
4/x
September 27, 2025 at 10:33 AM
Myös kahden huoneen asunnoissa sisäänkäynneistä näkymät ulos. Makuuhuoneet parisängyillä kalustettuina kuitenkin jo ahtaanpuoleisia. Kylpyhuoneet eivät enää esteettömiä, kun pyykkikone on sijoitettu paikalleen.

Ikkunoita kahteen suuntaan – tämä on harvinaisuus tämän kokoluokan nykyasunnoissa.
3/x
September 27, 2025 at 10:32 AM
Napakoista neliöistä huolimatta kolmen huoneen asunnot ihan toimivia, mm. kylpyhuoneet asiallisen esteettömiä. Pienempi melkoinen tilaihme, tosin kulkureitit hieman heikentävät tupakeittiön (oh/kt) kalustettavuutta.

Sisäänkäynneiltä näkymät ulos. Paljon parveketilaa.
2/x
September 27, 2025 at 10:30 AM
Harvinaisen pieni ja melko siro pistetalo rakentumassa Helsingin Pakilaan. Kerroksissa huoneistoalaa porrashuoneen ympärillä vain 199,5 m2, joten asuntoihin saa paljon ikkunoita ja lähes kaikki asunnot kulmiin. Asunnoissa tilamitoitus kuitenkin napakkaa.

Tarkempaa pohdintaa lyhyessä ketjussa.
1/x
September 27, 2025 at 10:28 AM
Vertailun vuoksi pienasuntoinnovaatio👇 15 vuoden takaa. Ns preesens-konsepti.
September 26, 2025 at 6:58 PM
Vertailun vuoksi standardista vähän poikkeava pienasunto👇 n. 55 vuoden takaa. Sisältää tavallaan 7 tilaa: eteinen, kylpyhuone, keittokomero, ruokailupiste, makuualkovi, olohuone, parveke. Suora näkymä sisäänkäynnistä ulos.
September 26, 2025 at 6:54 PM
Vertailun vuoksi tässä standardipienasunto👇 (ei innovaatioita) Rakennuskunta Hakan tyyppitalosta T-80 yli 40 vuoden takaa.
September 26, 2025 at 5:42 PM
Saman hankkeen toisen talon Duo-asunto muodostuu yksiön ja kaksion yhdistelmästä. Tuloksena 78,5-neliöinen 2h+k+s -asunto. Ei tilankäytöllistä huippua tämäkään – noihin neliöihin odottaisi vähintään kahta makuuhuonetta.
September 24, 2025 at 4:17 PM
Bonava tekee toisinaan kohteisiinsa kahdesta asunnosta yhdeksi yhdistettävissä olevia Duo-asuntoja. Usein ne ovat mainioita.

Tämä ei ole. Kahden putkiyksiön yhdistäminen 62,5-neliöiseksi tupak-mh+työtila -asunnoksi ei toimi, tuohon neliömäärään odottaisi 3 tai jopa 4 ikkunallista huonetta.
September 24, 2025 at 4:11 PM
Tähän tilaan saisi kyllä tehtyä version, jossa olisi se erilliskeittiö.
Pohjat hankkeesta joka ennakkomarkkinoinnissa.

PS. Kalusteiden esittäminen pohjapiirroksessa paljastaa tilojen käytettävyyden – myös sen puutteet.
August 30, 2025 at 6:17 PM
Löysin itse yhden👇
Valmistuu ensi vuonna.
August 30, 2025 at 2:22 PM
"Pohjat on nyt nähty." Enpä ole varma, vaikka näin päättyykin HS:n asuntorakentamisaiheinen pääkirjoitus.

Jutussa mainittu YIT:n Keravan hanke. Katsotaan pohjat siitä. Pari huomiota:

☝️ Portaan ympärillä paljon asuinpinta-alaa (354,5 h-m2)
👌 Jo 64,5 m2 asunnossa erillis-wc
👉 Talossa vain 1 yksiö
August 9, 2025 at 9:05 AM
Saman talon sisäänvedetyssä ylimmässä kerroksessa 75-neliöinen kolmio. Jälleen L-muoto, jossa edellistä vähemmän tilaa mutta silti myös ruoanvalmistuspaikka ikkunallinen.

Oppitunti runkosyvyyksistä ja pohjageometriasta. Silti: hämmästelen khh:n jättämistä ikkunattomaksi.
June 8, 2025 at 9:34 AM
Yllättävä kerrostalo ennakkomarkkinoinnissa Tapiolaan.

Runkosyvyys nykyharvinainen (ennen yleinen) 12 metriä. Talossa mm. yli 80 neliön kolmioita – ennen yleistä mutta nykyään harvinaista sekin. Hämmästelen tässä: märkätilat+vh julkisivuseinällä, mutta keittiö rungon keskellä, miksi ei toisin päin?
June 8, 2025 at 9:26 AM